exklusiv für die OÖ Bezirke: Gmunden, Kirchdorf, Wels Land & Vöcklabruck

ZIEGEL STATT EURO ZÄHLEN:
DAS LEISTBARE FAMILIENNEST.

Unser kompaktes Ziegelhaus verbindet Top-Qualität mit echter Leistbarkeit und wird von erfahrenen Handwerkern aus dem Salzkammergut gefertigt.

Durchdacht geplant, einfach gehalten und dennoch komplett ausgestattet, bietet es alles, was junge Familien für einen Start ins Eigenheim brauchen.
Und das Beste daran: Alles kommt aus einer Hand – von der ersten Idee bis zur Schlüsselübergabe.

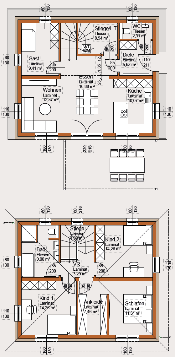
130m2 FLÄCHE*,
25 cm QUALITÄTSZIEGEL,
100% KOMFORT.

Im Kaufpreis enthalten:

  • Einreichplanung, Ausführungsplanung,
  • Bauansuchen, Baubeschreibung, Energieausweis
  • Streifenfundamente und Fundamentplatte,
  • PVC-Kanal unter Bodenplatte
  • 25 cm OÖ Qualitätsziegel mit 16 cm WDVS mit
  • Silikonhartputz
  • Betonelementdecken
  • Walmdach – Bramac Donau Dachstein
  • Spenglerarbeiten mit Dacheinstieg
  • Fenster Kunststoff Weiß – Internorm
  • Elektr. Beschattung Raffstore – Schlotterer
  • Innen- und Außenfensterbänke
  • Luftwärmepumpe mit Warmwasserspeicher
  • Elektroinstallation inkl. PV Vorbereitung
  • Estrich mit Fußbodenheizung
  • Innenputz
  • Laminatböden inkl. Sockelleisten
  • Boden und Wandfliesen
  • Innentüren weiß – Dana
  • Sanitäre Ausstattung (2 Waschbecken, Dusche, Badewanne, 2 WC, Handwaschbecken)
  • Frostsichere Außenarmatur

*130,43 m² Nettogrundrissfläche – 7,62 m² Stiege (EG, OG)
= 122,81 m² Wohnnutzfläche

Nicht enthaltene Leistungen (optional):
Erd- und Schotterungsarbeiten, Kanal außerhalb
der Bodenplatte (Putzschacht, Sickerschacht)
Keller, Garage oder Carport, Poolanlage, Terrasse,
Pergola, Außenanlagen, Gartenmauern, PV Anlage, etc.

Expertise, Innovation und jahrzehntelange Erfahrung in allen Bereichen
zeichnen uns aus.

Wir freuen uns darauf, von Ihnen zu hören!

+43 7612 795 – 4000

office@stern-bau.at

Ziegelhaus & Holzhaus

Copyright © 2026 Stern & Hafferl Baugesellschaft m.b.H.