exklusiv für die OÖ Bezirke: Gmunden, Kirchdorf, Wels Land & Vöcklabruck
EIN FAMILIENNEST AUS HOLZ – FÜR HEUTE GEBAUT,
AN MORGEN GEDACHT.
Unser kompaktes Holzhaus verbindet natürliche Bauweise mit durchdachter Planung und echter Leistbarkeit.
Gefertigt von erfahrenen Handwerkern aus dem Salzkammergut entsteht ein Zuhause, das heute begeistert und an morgen denkt. Leistbar geplant, klar strukturiert und dennoch komplett ausgestattet, bietet es alles, was junge Familien für den Start ins Eigenheim brauchen.
Und das Beste: Alles kommt aus einer Hand – von der ersten Idee bis zur Schlüsselübergabe.
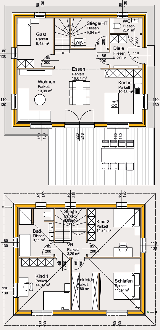
133m² FLÄCHE*,
10 cm MASSIVHOLZWAND,
100% KOMFORT.
Im Kaufpreis enthalten:
- Einreichplanung, Ausführungsplanung,
- Bauansuchen, Baubeschreibung, Energieausweis
- Streifenfundamente und Fundamentplatte,
- PVC-Kanal unter Bodenplatte
- 10 cm Massivholzwand mit 20 cm Holzfaserdämmung
- Holzfassadenschalung Fichte inkl. Vergrauungsanstrich
- Massivholzdecken
- Walmdach – Bramac Donau Dachstein
- Spenglerarbeiten mit Dacheinstieg
- Fenster Holz-Alu (EG), Kunststoff-Alu (OG) – Internorm
- Elektr. Beschattung Raffstore – Schlotterer
- Innen- und Außenfensterbänke
- Luftwärmepumpe mit Warmwasserspeicher
- Elektroinstallation inkl. PV Vorbereitung
- Estrich mit Fußbodenheizung
- Sichtholz Innenwände
- Parkettböden inkl. Sockelleisten
- Boden und Wandfliesen
- Innentüren weiß – Dana
- Sanitäre Ausstattung (2 Waschbecken, Dusche, Badewanne,
2 WC, Handwaschbecken) - Frostsichere Außenarmatur
* 133,24 m² Nettogrundrissfläche – 7,62 m² Stiege (EG, OG) =
125,62 m² Wohnnutzfläche
Nicht enthaltene Leistungen (optional):
Erd- und Schotterungsarbeiten, Kanal außerhalb
der Bodenplatte (Putzschacht, Sickerschacht)
Keller, Garage oder Carport, Poolanlage, Terrasse,
Pergola, Außenanlagen, Gartenmauern, PV Anlage, etc.
Expertise, Innovation und jahrzehntelange Erfahrung in allen Bereichen
zeichnen uns aus.
